Dubrava Primary School

Zagreb, Croatia

Project: Competiton
Location:
Zagreb, Croatia
Year: 2026
Program: Primary School
Gross Floor Area: 5420 m2

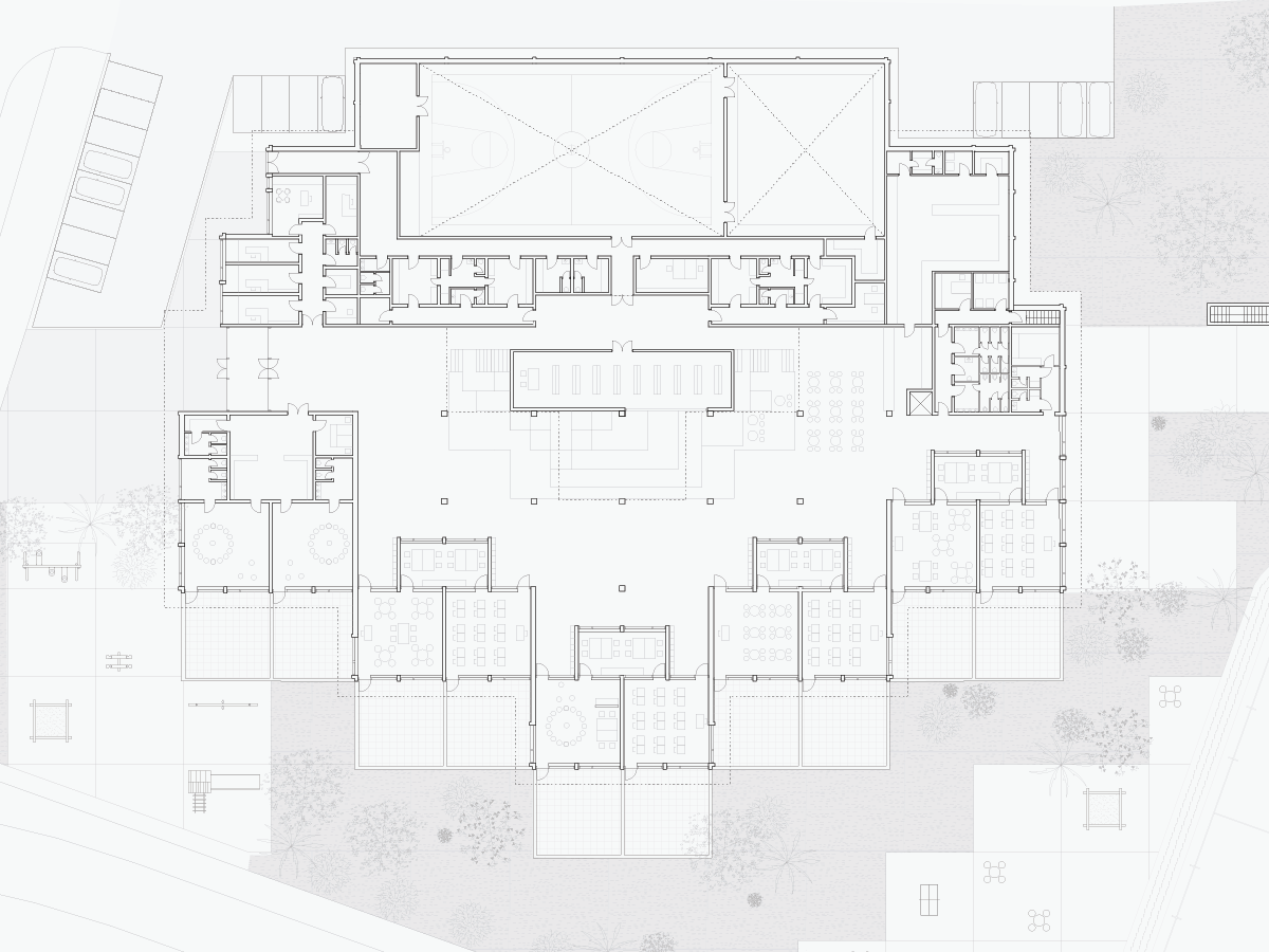
The Dubrava–Center Primary School is conceived as an all-day learning landscape in which architecture, pedagogy, and environment form an integrated whole. Embedded within a mixed residential context, the school acts as an open yet sheltered civic building that supports interaction between education and the local community, while providing a strong sense of comfort, familiarity, and belonging.

The building is organised as a stepped, terraced sectional landscape that connects interior learning spaces with outdoor environments. This hill-like form enables the multifunctional use of roofs as outdoor classrooms, play areas, and climate-regulating surfaces, extending learning beyond the classroom through daylight, fresh air, and vegetation. A central learning commons forms the heart of the school: a stepped, tribune-like space supporting informal learning, gathering, and presentation as part of everyday school life.

Classrooms are arranged in learning clusters around this central core, optimally oriented for daylight and supported by flexible breakout spaces and learning streets. The spatial layout allows daylight to penetrate deep into the building while enabling mixed-mode ventilation through cross-ventilation, stack effect, and night-time summer cooling. Green roofs improve the microclimate, retain stormwater, and enhance biodiversity, while offering outdoor learning space and seasonal ecological habitats for children.

A hybrid timber and low-carbon concrete structure ensures low embodied carbon, durability, flexibility, and seismic performance. Combined with a passive-first energy concept targeting sustainability standards and on-site photovoltaic generation, the school emerges as a resilient, child-centred, and environmentally responsible civic landmark for Dubrava.

Previous
Previous

Opptopper Transformation

Next
Next

Campus City Project