Paris Proof Makeover

Straat van Florida, Almere, NL

Location:  Almere buiten, NL
Year: 2025
Site Footprint: 20.100 m2.
Type of assignment: Transformation / Paris Proof upgrade
FSI Netto: 1.1
Gross Floor Area: 22.642 m2
Program: Educational, office
Client: Stichting Regionaal Opleidingencentrum van Amsterdam-Flevoland
Facade consultant and manufactor: STOH
Technical advisor: Haskoning Engineering
Building contractor: Ooijevaar

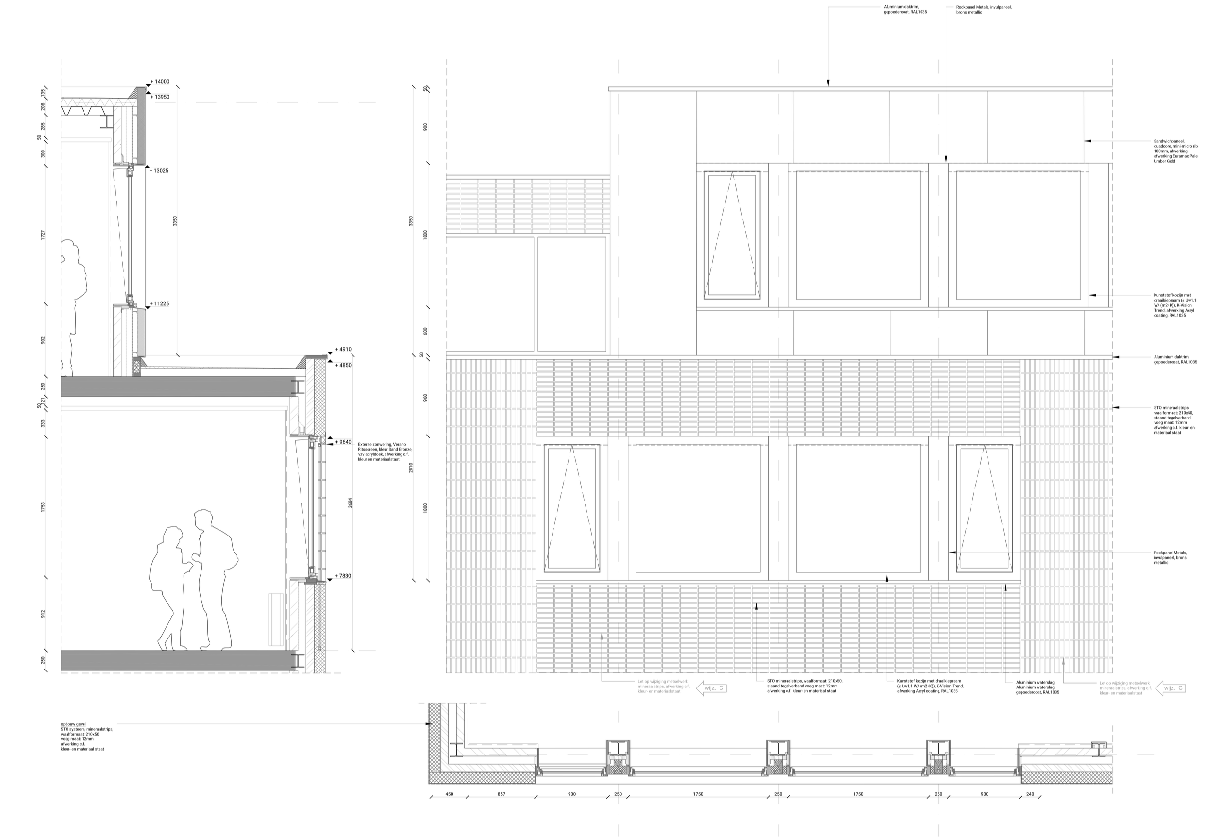
The renovation of the MBO College Almere at Straat van Florida is a subtle yet ambitious transformation: not a replacement, but a careful evolution of an ageing campus into a Paris Proof learning environment. Positioned on a prominent corner within Almere Buiten’s station area, the complex forms an important public face for vocational education and a potential connector to the evolving centre. Over time, the ensemble became visually fragmented, with inconsistent materials, dominant colour accents and façades and window systems that no longer meet contemporary technical and environmental standards. The design scope therefore begins with a clear ambition: to strengthen the campus as a coherent, calm and recognisable whole, while substantially improving performance, comfort and long-term spatial quality.  The assignment was not to replace or reinvent the campus, but to carefully transform it, technically, spatially and architecturally, towards a Paris Proof future.

At the core of the project is Paris Proofing, by targeting a significant reduction in energy demand to around 70 kWh/m². This is achieved through high-performance external insulation, replacement of outdated frames, integrated sun shading and a façade strategy that functions as both technical upgrade and architectural unifier. By retaining and upgrading the existing structure, the project preserves embodied carbon while extending the building’s lifespan. A restrained and durable material palette, mineral strips, refined metallic elements and warm bronze accents, replaces visual noise with unity, while subtle variations in rhythm and detailing maintain identity per building part. The façade system is conceived as robust and adaptable, anticipating future changes in use without compromising architectural coherence. The renewed campus emerges as an energy-efficient, legible ensemble that expresses a forward-looking learning environment through precision, restraint and care.

Previous
Previous

La Ville Foret

Next
Next

Optopper for Seniors