Three Buildings, One Community

Amsterdam, NL

Location: Amsterdam, NL
Year: 2020
Site Footprint: 1.142 m2
FSI Netto: 4.1
Gross Floor Area: 4.655 m2 (incl. underground parking)
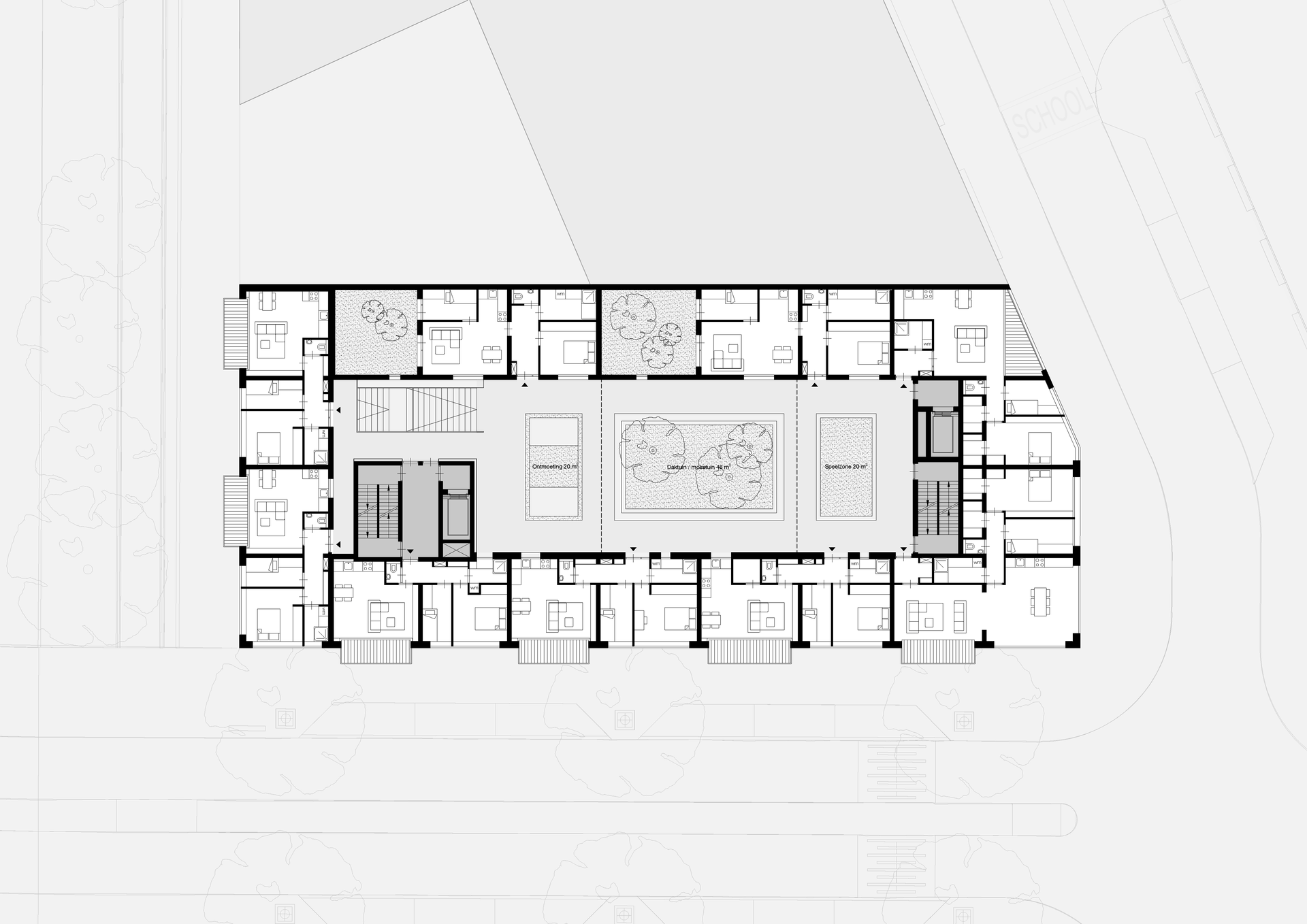
Total Number of Apartments: 68
ranging in sizes from 65 m2, 35 m2 and 27 m2
Program: Residential, Social amenties
Client: Rochdale
Sustainabilty: -
Structural Engineer: -
Installations: -
Landscape: -
Associates: VDNDP

The new Weespertrekvaart district in Amsterdam is conceived as a mixed residential–work neighbourhood with a clear industrial identity. Within this Kavel 1B forms part of a mixed-use block defined by a busy street along its long elevation and two quieter side streets. A double-height plinth of approximately eight metres, consistent with the wider urban plan, creates space for work-related functions that can evolve over time, supporting flexibility in use and a lively public realm. Above this robust base, housing is organised to balance density with comfort, while the building’s massing responds carefully to the different street conditions and addresses the block with clear entrances and an active ground floor.The architectural envelope is structured as an eight-metre plinth, a shared roof landscape, and an integrated strategy for nature inclusivity.

Kavel 1B is articulated as two distinct building identities sitting on a recognisable common base, each with its own address and expression. The concept—three buildings, one community—draws inspiration from the area’s industrial heritage as a place for low-rise, light production. A tough urban block is paired with a metal “silo” tower rising from a brick warehouse-like pedestal, forming a legible architectural family. Brick detailing, tactile joints and subtle curvature in the façades bring refinement at pedestrian level, ensuring the building feels attractive and crafted up close. The roofscape offers collective outdoor space and an ecological layer, extending greenery through the block and strengthening biodiversity. Together, these elements create a flexible, characterful and future-ready mixed-use building, rooted in the site’s working history.

200812 Context.jpg
200904 Diagrams-Program.jpg
200723 Axo interior.jpg
200722 Render op2.jpg
200723 Render interior lienzo reducido.jpg
Previous
Previous

Eloquent Tower

Next
Next

New Town Center